In ruhiger, aber sehr zentraler Lage vermieten wir ab 01.04.2026 3 Komfort- Wohnungen als Erstbezug. Die Wohnungen sind ca. 100 m² bis ca. 137 m² groß und bieten unterschiedliche Aufteilungen – alle mit Balkon bzw. Terrasse. Je 2 Stellplätze mit einem E-Ladeanschluss gehören zu den Wohnungen dazu.
Alle Räume sind hell und lichtdurchflutet. Die Wohnungen sind sehr modern und großzügig geschnitten.
Lage:
wenige Minuten Fußweg zum morgendlichen Brötchen-Bäcker, Einkaufsläden, Apotheke und Ärzten gelegen, bieten die Wohnungen durch ihre besondere Lage beste Versorgungsangebote. Schulen (alle Schulformen) und Kindergärten, aber auch Frei- und Hallenbad sind schnell und unkompliziert erreichbar. Düsseldorf, Aachen und Köln sind verkehrstechnisch durch Bahn und Autobahnen schnell angebunden.


Erdgeschoss-Wohnung mit Terrasse und Garten
Die geräumige, sehr moderne Wohnung (Erstbezug) bietet auf ca.137 m² helle, lichtflutete Räume: einen großen Wohn- & Essbereich, 1 geräumige Küche, 1 Schlafzimmer, 1 Kinderzimmer oder Büro für`s Home-Office, Bad mit Wanne & Dusche, Gäste-WC, Terrasse und eigenen Garten. 1 Garage mit E-Lade-Station und 1 Stellplatz gehören zur Wohnung. Außerdem gibt es zusätzlich einen vielfältig nutzbaren, privaten ca. 27 m² großen, beheizbaren Hobby-Keller und einen Lager-Keller.
Das moderne Bad mit bodengleicher Dusche, Handtuchwärmer und hochwertigen Armaturen sorgt für einen perfekten Start in den Tag. Hier ist auch Platz für Waschmaschine und Trockner. Für Ihre Gäste steht ein eigenes Gäste-WC zur Verfügung.
Entspannung finden die Mieter auch im ca. 250m² großen Garten, der direkt von der Terrasse aus zugänglich ist.
Ausstattung:
Fußbodenheizung in allen Räumen
Hochwertiger Vinyl-Designboden in Holzoptik elektrische Rollläden
Modernes Bad mit Wanne und bodengleicher Dusche
Gäste-WC, Terrasse, Hobby-Raum, Kellerraum
1 Garage und 1 Stellplatz mit eigenem E-Ladeanschluss
Die sehr gute Dämmung des gesamten Hauses hält Ihre Energie-Kosten überschaubar.
Kaltmiete 1.575,00 Euro plus 70,00 Euro für KFZ-Garage und -Stellplatz. Nebenkosten-VZ: 250,00 Euro, Kaution 3 Netto-Kaltmieten
Nur an Selbstzahler und Nicht-Raucher. Haustierhaltung ist nicht möglich
Die Gartenpflege obliegt den Mietenden

Obergeschoss-Wohnung mit großem Süd-Balkon
Die geräumige, sehr moderne 4-Zimmer-Wohnung (Erstbezug) bietet auf ca. 137 m² einen großen Wohn & Essbereich mit Küche, 1 Schlafzimmer, 2 Kinderzimmer oder Büroraum fürs Home-Office, Bad mit Wanne & bodengleicher Dusche und Platz für Waschmaschine und Trockner, Gäste-WC, überdachten Balkon. 2 Stellplätze mit einer E-Lade-Möglichkeit gehören zur Wohnung. Außerdem gibt es einen Kellerraum.
Ausstattung:
Fußbodenheizung in allen Räumen
Hochwertiger Vinyl-Designboden in Holzoptik elektrische Rollläden
Modernes Bad mit Wanne und bodengleicher Dusche;
Gäste-WC, Balkon, Keller
2 PKW-Stellplätze mit eigenem E-Ladeanschluss
Die sehr gute Dämmung des gesamten Hauses hält Ihre Energie-Kosten überschaubar.
Kaltmiete 1.575,00 Euro plus 60,00 Euro für 2 PKW-Stellplätze. Nebenkosten-VZ: 250,00 Euro, Kaution: 3 Netto-Kalt-Mieten
Nur an Selbstzahler und Nicht-Raucher. Haustierhaltung ist nicht möglich
Vermietung ab 01.April 2026

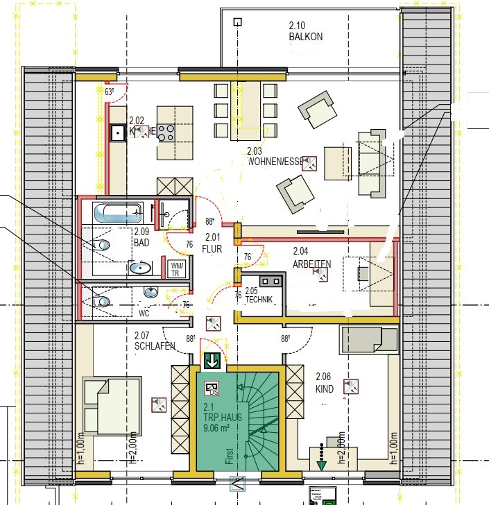
Klimatisierte Dachgeschoss-Wohnung mit überdachtem Süd-Balkon
Diese neu erstellte 4-Zimmer-Dachgeschoss-Wohnung erstreckt sich über ca. 101 m² und bietet großzügige, lichtdurchflutete Räume, die mit hochwertige Materialien ausgestattet sind. Die vorhandene Klima-Anlage führt auch im Sommer zu einem angenehmen Wohlfühl-Klima! Eine großzügig gestaltete Wohnung zum Wohlfühlen!
Genießen Sie Ihren Feierabend und das Familienleben im offenen Wohn-, Koch- und Essbereich mit großer Fensterfront und Zutritt auf den Süd-Balkon. Die Wohnung liegt im Dachgeschoss eines 3-Familien-Hauses in einem ruhigen Wohnviertel von Erkelenz.
Die zwei Schlafzimmer und der Büroraum bieten viel Raum für Familie, ruhiges Home-Office und/oder Gäste.
Das moderne Bad mit Wanne und bodengleicher Dusche, Handtuchwärmer und hochwertigen Armaturen sorgt für einen perfekten Start in den Tag. Hier ist auch Platz für Waschmaschine und Trockner. Für Ihre Gäste steht ein eigenes Gäste-WC zur Verfügung. Parkplatz-Suche war gestern – die 2 Stellplätze bieten sogar einen eigenen E-Ladeanschluss!
Ausstattung:
Klimaanlage und Fußbodenheizung in allen Räumen,
hochwertiger Vinyl-Designboden in Holzoptik
Modernes Bad mit Wanne und bodengleicher Dusche, Handtuchtrockener.
Gäste-WC, Balkon, abgeschlossener Kellerraum
2 PKW-Stellplätze mit eigenem E-Ladeanschluss
Die sehr gute Dämmung des gesamten Hauses hält Ihre Energie-Kosten überschaubar.
Kaltmiete 1.300,00 Euro plus 60,00 Euro für 2 PKW-Stellplätze. Nebenkosten-VZ: 200,00 Euro Kaution: 3 Netto-Kalt-Mieten
Nur an Selbstzahler und Nicht-Raucher Haustierhaltung ist nicht möglich
Vermietung ab 01. April 2026
